• Creating Worlds With You
  • Architecture
  • Stage Design
  • Graphics
  • Contact
Creating Worlds With You
  • Creating Worlds With You
  • Architecture
  • Stage Design
  • Graphics
  • Contact

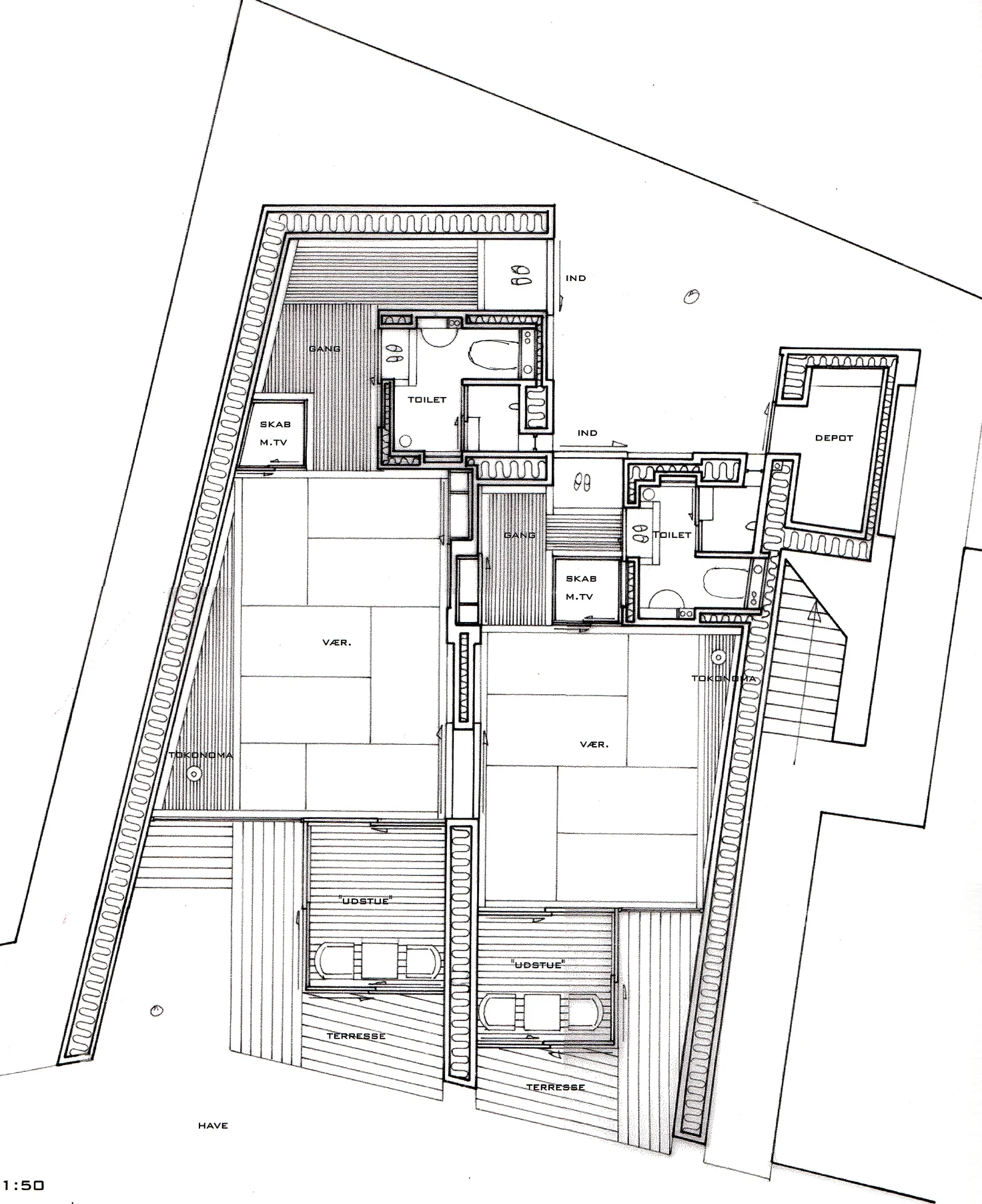
Yokohama Guesthouse Design

Challenge:
Design a "Modern Ryokan" (modern traditional Japanese guesthouse) set in Yokohama, Japan.

Solution:
Applied for travel funds and went to Japan. Found a site, obtained local maps and site info. Then developed a design taking it’s outset in traditional Japanese principles for moving through a building and making use of reclaimed land on water, which is in turn relevant to harbor cities around the world.

Skills and Tools:
Concept and design
Site documentation
Site photography
Full hand drawing set
Models
Presentation layout
Application for travel funds
1 Month funded study trip to Japan

Client:
Thesis project from AAA 2002

Thanks for support and funding:
Carl Th. Dreyer's Fund
3 x Nielsen's Fund
Lemvig, Mûller og Munch's Fund

What is your challenge?

 

afgang oversigt foto.jpg
Afgangs planche_03_web.jpg
Afgangs planche_04_web.jpg
afgang modelfoto partysuite.jpg
yokohama_Outer halway.jpg
yokohama_interior.jpg
yokohama plan_01.jpg
afgang perspektiv gang.jpg

Copyright © Bodil Veibaek. All rights reserved.